PlankontoretLytt til tekstenStopp avspillingPlankontoret skal sjå til at plan- og bygningsloven blir følgt i all arealplanlegging i kommunen og vere ansvarlig for utforming av kommunale reguleringsplanar.Plankontoret sine viktigste oppgåver og tenester er:Ansvar for arealplanlegging etter plan- og bygningslovaUtarbeide arealplaner: områdeplanar, reguleringsplanar og temaplanar. Plankontoret er med på utarbeiding av kommuneplanen sin arealdelSaksbehandling: Private reguleringsplaner, dispensasjonssøknader, klage på reguleringsplanar med fleireRettleie/legge til rette for private tiltakshavarar/plankonsulentar i samband med utarbeiding av private reguleringsplanerRettleiing til innbyggaraneKommunen sine arealplaner og planer under arbeid kan ein finne i planregisteret eller via kartet. Det finn du her:Planregister: arealplaner.noKart: Publikum (kommunekart.com)KommuneplanPlanstrategi 2024 - 2027 (PDF, 2 MB)Kommuneplanen sin samfunnsdel 2023-2033 (PDF, 2 MB)Kommuneplanen sin arealdel 2018-2029:Føresegner og retningsliner (PDF, 3 MB)Plankart (PDF, 20 MB)Plankart sjøbotnen (PDF, 13 MB)Planomtale (PDF, 17 MB)Saksdokument (PDF, 711 kB) Viktige dokumenterBarnetråkk, leikeplassnorm, fortettingsstrategi, kartlegging av friluftsområder og liknande kan ein finne i planregisteret under dokumenter tilhøyrande kommuneplanen. Lenke: arealplaner.no Publisert 11.09.2019 15.12
Kunngjering av nyleg eigengodkjente reguleringsplanar I samsvar med plan- og bygningslova (pbl) § 12-12, vert det med dette gjort kjent at Giske kommunestyre i møte den 11.12.2025, har eigengodkjent følga...
OFFENTLEG ETTERSYN AV DETALJREGULERING GISKEREMEN, GBNR 127/34 – Bg5 Detaljregulering med namn Giskeremen, gbnr 127/34 – Bg5 blir lagt ut til offentleg ettersyn etter vedtak i Teknisk utval den 12.06.2025 (TU – 035/25). ...
Varsel om oppstart av reguleringsarbeid for Godøy småbåthamn I samsvar med plan- og bygningslova § 12-8 varsla Nordplan AS oppstart av regulerings-endring av plan for Godøy småbåthamn, i Giske kommune. Registrer...
Detaljreguleringsplan Dyb Panorama – kunngjering av eigengodkjent plan Kommunestyret har i møte 14.03.2024 vedteke Detaljregulering med namn Dyb Panorama og planident 2018016.
Detaljreguleringsplan Hjallismarka - kunngjering av eigengodkjent plan Kommunestyret har i møte 15.05.2025, k-sak 038/25, i medhald av plan- og bygningslova(pbl) § 12-12, eigengodkjent detaljreguleringsplan Hjallismarka p...
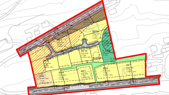
Kunngjering av eigengodkjent reguleringsplan - Jussbakken Kommunestyret har i møte den 26. september vedtatt detaljreguleringsplan for Jussbakken på Godøya.Planen er gjeldande frå vedtaksdato (jf. Plan- og by...
Planstrategi 2024 - 2027 Giske kommunestyre vedtok i møte 26.09.2024 planstrategi for perioden 2024 - 2027.
Mindre reguleringsendring av ein plan på Ytterland (PlanID: 1994001) Det er igang ei mindre endring av ein reguleringsplan på Ytterland. Frist for innspel er 1. februar.
Giske kommune skal rullere arealplanen og arbeidet startar no! Varsel om oppstart av arbeid med kommuneplanen sin arealdel og høyring av forslag til planprogram Giske formannskap vedtok i møte den 25.09.2023, sak ...
Offentleg ettersyn av detaljreguleringsplan Jussbakken på Godøya Detaljreguleringsplan Jussbakken på Godøya blir lagt ut til offentleg ettersyn etter vedtak i Teknisk utval den 08.06.2023. Høyringsperioden er frå ti...