Kunngjering av nyleg eigengodkjente reguleringsplanar
I samsvar med plan- og bygningslova (pbl) § 12-12, vert det med dette gjort kjent at Giske kommunestyre i møte den 11.12.2025, har eigengodkjent følgande planar:
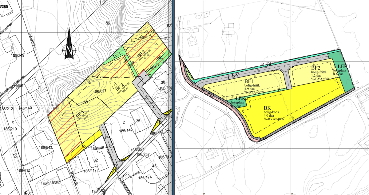
- K – 108/25: 16/1305 Detaljreguleringsplan for gbnr 186/627 - Skjongskaret nord, med planID: 2016006
- K – 109/25: 19/1286 Detaljregulering Giskeremen gbnr. 127/34, med planID: 2019006
Varsel om eigengodkjent plan er sendt offentleg mynde, rettshavarar, grunneigarar og naboar. Kommunestyret sitt vedtak kan påklagast til Statsforvaltaren i Møre og Romsdal som klageinstans, jf pbl §§ 1-9 og 12-12 og forvaltningslova (fvl) kap. VI.
Eventuell klage skal vere grunngjeven og sendast til
Giske kommune
Valderhaug 4
6050 Valderøya
eller helst til post@giske.kommune.no. Frist for å klage er normalt 3 veker frå det tidspunkt underretninga om vedtaket er kome fram til vedkommande part, jamfør fvl §§ 29 - 31. Ettersom fleire vil ta juleferie og det er færre virkedager fram til nyår, blir fristen forlenga med 14 dagar.
Sjå vedtatt plan i vårt planregister:
Detaljregulering Skjongskaret nord gbnr 186/627: arealplaner.no | 2016006 > Plandokumenter
Detaljregulering Giskeremen gbnr. 127/34: arealplaner.no | 2019006 > Plandokumenter

Sist endra 17.12.2025 12.53